sovetchitsa
Советчица
Вход Регистрация
Спросить Советую Промо публикация Поиск товара
Настройки
Язык меню: ru ua Шрифт: a a a
Служба поддержки
Вход Регистрация
Правила | Ограничения | Cookies
©2008—2025 Советчица Kidstaff
Советчица - Семья, Дом, Дети - Интерьер
anonim_127
Снідаю авокадо• 15 мая в 05:56

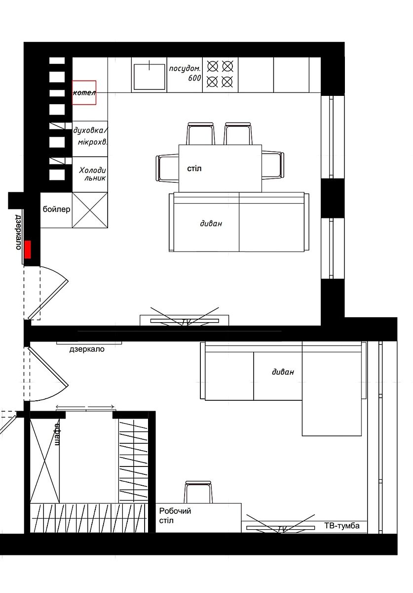
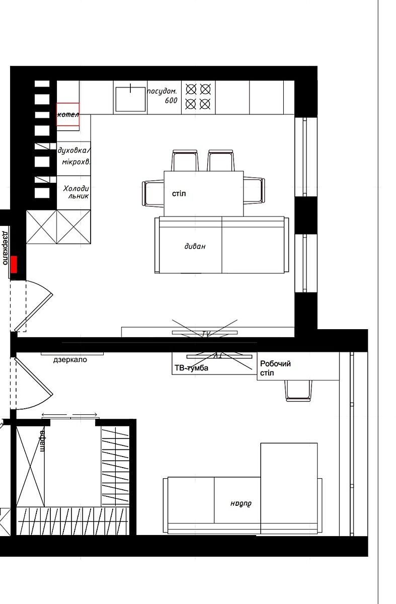
Розстановка меблів у кімнаті

Обираю варіанти розстановки меблів у гостьовий кімнаті. На фото варіанти дизайнера. Скажіть , будь ласка, який ви б обрали ? Нюанс - панорамні вікна , дуже гарний вид на архитектурну пам´ятку, але кращий, якщо дивитися з лівого кута кімнати.
Особисто мені більше подобається диван по стіні , суміжній з кухнею , але дизайнер вважає , що негарно буде , що диван буде навпроти дверей + маленький прохід між гардеробною й диваном
attached-photo
attached-photo
attached-photo
woman_facepalming 2 dislike 3
74 0
Все фото темыКомментарии автораМои ответы
  • 1
  • 2
  • 3
anonim_154
СкумбріяП8• 15 мая в 06:18
1
кроме дивана ничего не меняется
like 3
anonim_127
автор Снідаю авокадо • 15 мая в 06:24
2
Ответ дляСкумбріяП8
кроме дивана ничего не меняется
Саме так - питання, як його поставити , з якого боку й в який кут
dislike 1 woman_facepalming 3
anonim_84
Боневтікла• 15 мая в 06:25
3
Мені більше 1й варіант подобається
dislike 1
anonim_127
автор Снідаю авокадо • 15 мая в 06:27
4
Ответ дляБоневтікла
Мені більше 1й варіант подобається
Мені також , але мене переконують, що незручно, коли диван навпроти входу в кімнату
face_with_tears_of_joy 3
anonim_84
Боневтікла• 15 мая в 06:30
5
Ответ дляСнідаю авокадо
Мені також , але мене переконують, що незручно, коли диван навпроти входу в кімнату
3й зовсім не подобається.
anonim_204
Молчунья• 15 мая в 06:30
6
Не делайте ни тот ни тот вариант. Не выдержаны оси, не выделен центр композиции, мебель не в правильных размерах, или очень большая или очень маленькая. Не учтена эргономика на кухне. На кухне может вообще от такого размера дивана отказаться.
like 7 dislike 1 face_with_tears_of_joy 1
noavatar
Love_Love_Love_• 15 мая в 06:32
7
Мені взагалі незрозуміле планування.
Диван, диван, телевізор телевізор, до чого там робоча зона?
В гостьовій кімнаті гардеробна?
like 7 dislike 1
anonim_154
СкумбріяП8• 15 мая в 06:40
8
Ответ дляСнідаю авокадо
Саме так - питання, як його поставити , з якого боку й в який кут
3
anonim_99
Кто крайний?• 15 мая в 06:42
9
Мені 3 варіант більш зручним здається
like 3
anonim_205
Клептоманка• 15 мая в 06:48
10
3
anonim_127
автор Снідаю авокадо • 15 мая в 06:50
11
Ответ дляLove_Love_Love_
Мені взагалі незрозуміле планування.
Диван, диван, телевізор телевізор, до чого там робоча зона?
В гостьовій кімнаті гардеробна?
Робоча зона - щоб можна було попрацювати за ноутбуком, а навіщо вона ще може бути потрібна ? Так, гардеробна в гостьовий кімнаті. Телевізор й диван там одні
woman_facepalming 3 like 1
anonim_127
автор Снідаю авокадо • 15 мая в 06:51
12
Ответ дляМолчунья
Не делайте ни тот ни тот вариант. Не выдержаны оси, не выделен центр композиции, мебель не в правильных размерах, или очень большая или очень маленькая. Не учтена эргономика на кухне. На кухне может вообще от такого размера дивана отказаться.
В мене зараз кухня в такому розмірі й з такою розстановкою. Все враховано.
like 1
noavatar
Love_Love_Love_• 15 мая в 07:00
13
Ответ дляСнідаю авокадо
Робоча зона - щоб можна було попрацювати за ноутбуком, а навіщо вона ще може бути потрібна ? Так, гардеробна в гостьовий кімнаті. Телевізор й диван там одні
Типу хтось працює, а ззаду хтось сидить на дивані і дивиться тв? Для чого гостям гардеробна?
like 3 woman_facepalming 8
anonim_12
Едимнаморе• 15 мая в 07:03
14
Зачем вам вид с дивана? у вас не будет тюля и штор?
like 5
anonim_80
Малая еще та• 15 мая в 07:05
15
Не пойму зачем в гостевой комнате гардеробная, и рабочий стол. И почему выбор для гостей диван, а не кровать?
woman_facepalming 3
noavatar
МашМааш• 15 мая в 07:09
16
А если диван у кухонной стены, а на ней телевизор, не будет ли это мешать? Какие стены? В моем опыте при чувствительном сне это ужас ужасный
anonim_127
автор Снідаю авокадо • 15 мая в 07:15
17
Ответ дляLove_Love_Love_
Типу хтось працює, а ззаду хтось сидить на дивані і дивиться тв? Для чого гостям гардеробна?
Ні, колись хтось працює, колись дивиться телевізор , колись спить , колись читає.
Гардеробна для всіх проживаючих у квартирі, не тільки для гостей
woman_facepalming 4
anonim_127
автор Снідаю авокадо • 15 мая в 07:18
18
Ответ дляЕдимнаморе
Зачем вам вид с дивана? у вас не будет тюля и штор?
Будуть, звісно, але ж їх можна розсунути. В мене була квартира з гарним видом, вдень завжди штори були зсунуті в бік
woman_facepalming 1
noavatar
Love_Love_Love_• 15 мая в 07:18
19
Ответ дляСнідаю авокадо
Ні, колись хтось працює, колись дивиться телевізор , колись спить , колись читає.
Гардеробна для всіх проживаючих у квартирі, не тільки для гостей
Ок, у вас бувають гості які працюють гостюючи у вас, тобто це не люди переночувати 1-2 дні? Але до них в кімнату заходять всі члени родини в гардеробну?
Якщо вони не на 1-2 дні то чому там диван, а не ліжко? ( хоча мені, взагалі дивно, чому в гостьовій диван?
like 2 dislike 8
noavatar
a.ostroverh• 15 мая в 07:19
20
Если это гостевая комната, где гости раз в пятилетку, то я бы диван брала не угловой
И тогда какая разница какой вид из окна в принципе, вы же там не находитесь большую часть времени вообще, ну или за рабочим столом...
Из всего этого третий вариант, когда заходишь, не так видно ’одоробло’ на всю комнату
И вообще странно, дизайнеры обычно критикуют расстановку мебели вдоль всех стен
Может хоть рабочий стол к окну развернуть?
like 1
anonim_127
автор Снідаю авокадо • 15 мая в 07:19
21
Ответ дляМалая еще та
Не пойму зачем в гостевой комнате гардеробная, и рабочий стол. И почему выбор для гостей диван, а не кровать?
Тому що гості бувають пару разів на рік, в інший час ця кімната буде використовуватися як багатофункціональна
face_with_tears_of_joy 4
anonim_106
Дюймовочка• 15 мая в 07:20
22
Я б на Вашому місці винесла ту стіну між кухнею і гостьовою кімнатою і зробила б шикарну кухню-студію. В мене вже в другій квартирі велика кухня-студія і це любов. Гості пару раз в рік зупиняються або на дивані або на надувному дивані в спальні меншого сина.
like 2 dislike 10
noavatar
Love_Love_Love_• 15 мая в 07:20
23
Ответ дляСнідаю авокадо
Тому що гості бувають пару разів на рік, в інший час ця кімната буде використовуватися як багатофункціональна
Ну то не називайте її гостьовою 🤷‍♀️
woman_facepalming 3 like 3 dislike 1
anonim_81
Фокус-Покус• 15 мая в 07:21
24
Мне первый вариант совсем не нравится. Диван в проходной зоне, сразу как бы натыкаешься на него, нужно обходить.
heart 3
noavatar
Love_Love_Love_• 15 мая в 07:21
25
Ответ дляДюймовочка
Я б на Вашому місці винесла ту стіну між кухнею і гостьовою кімнатою і зробила б шикарну кухню-студію. В мене вже в другій квартирі велика кухня-студія і це любов. Гості пару раз в рік зупиняються або на дивані або на надувному дивані в спальні меншого сина.
Вот іменно.
dislike 4
anonim_127
автор Снідаю авокадо • 15 мая в 07:22
26
Ответ дляLove_Love_Love_
Ок, у вас бувають гості які працюють гостюючи у вас, тобто це не люди переночувати 1-2 дні? Але до них в кімнату заходять всі члени родини в гардеробну?
Якщо вони не на 1-2 дні то чому там диван, а не ліжко? ( хоча мені, взагалі дивно, чому в гостьовій диван?
Вони на 1-2 дні. Зараз в мене в гостьовий ліжко й 90% часу нею не користуємося, бо там нема чого робити , крім як спати. Працювати буду я/чоловік/гості епізодично
anonim_127
автор Снідаю авокадо • 15 мая в 07:24
27
Ответ дляМашМааш
А если диван у кухонной стены, а на ней телевизор, не будет ли это мешать? Какие стены? В моем опыте при чувствительном сне это ужас ужасный
Не буде. Коли гості будуть спати, буде ніч , господарі також будуть спати
noavatar
Love_Love_Love_• 15 мая в 07:24
28
Ответ дляСнідаю авокадо
Вони на 1-2 дні. Зараз в мене в гостьовий ліжко й 90% часу нею не користуємося, бо там нема чого робити , крім як спати. Працювати буду я/чоловік/гості епізодично
Тоді я схиляюсь до варіанту в пості 22
Бо функціонал вашої гостьової- такий собі, у вас не так багато місця в квартирі щоб робити щось для чужих людей і користуватися 6 днів в році
anonim_127
автор Снідаю авокадо • 15 мая в 07:29
29
Ответ дляa.ostroverh
Если это гостевая комната, где гости раз в пятилетку, то я бы диван брала не угловой
И тогда какая разница какой вид из окна в принципе, вы же там не находитесь большую часть времени вообще, ну или за рабочим столом...
Из всего этого третий вариант, когда заходишь, не так видно ’одоробло’ на всю комнату
И вообще странно, дизайнеры обычно критикуют расстановку мебели вдоль всех стен
Может хоть рабочий стол к окну развернуть?
Я ось хотіла там знаходитися, коли гостей не буде. Щось робити, споглядаючи гарний вид з вікна. Чому не в кухні -вітальні ? Тому що чоловік часто там готує й любить це робити наодинці.
Тут кімната дуже мала - без гардеробної всього 14 метрів лишається, нема як по- іншому ставити меблі
face_with_tears_of_joy 1
anonim_106
Дюймовочка• 15 мая в 07:29
30
І на хіба в гостьовій гардеробна? Вона робить з кімнати маленьку конуру, функціоналу більше у шафи і місця менше забирає. Гардеробні роблять в кімнатах від 20 кВ м.
like 3
  • 1
  • 2
  • 3
Мнения, изложенные в теме, передают взгляды авторов и не отражают позицию Kidstaff
Тема закрыта

Похожие темы:

Ще з цiкавого


Популярные вопросы!

Сегодня Вчера 7 дней 30 дней

ещё

Сейчас читают!

Благотворительность!

Назад Комментарии к ответу

О нас | Служба Поддержки | Помощь

Правила | Ограничения | Cookies ©2008—2025 Советчица Kidstaff