sovetchitsa
Советчица
Вход Регистрация
Спросить Советую Промо публикация Поиск товара
Настройки
Язык меню: ru ua Шрифт: a a a
Служба поддержки
Вход Регистрация
Правила | Ограничения | Cookies
©2008—2025 Советчица Kidstaff
Советчица - Бизнес, Финансы - Недвижимость
anonim_31
Вредняжка• 28 ноября 2024

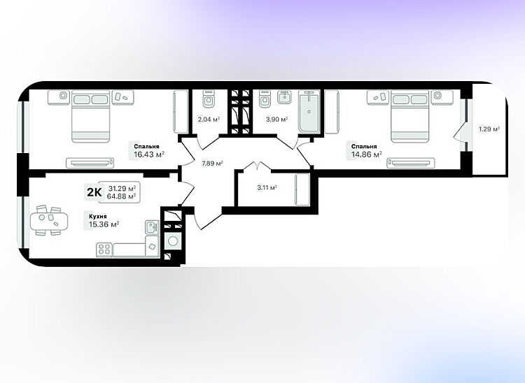
Опять я с темы о гардеробной. Может лучше продать квартиру?

Девочки, общались с вами относительно квартиры и гардеробной.
Выслушала советы, спасибо. Пришла к выводу, что места маловато.
Подскажите, вот есть квартира, есть запас денег на ремонт.
Думаю, может выставить на продажу и попробовать продать, а потом добавить и купить 3-х комнатную уже готовую с ремонтом.
Но я даже не знаю, за сколько эту купят…
attached-photo
face_with_tears_of_joy 6 woman_facepalming 19
77 0
Все фото темыКомментарии автораМои ответы
  • 1
  • 2
  • 3
anonim_139
Добра всем!• 28 ноября 2024
1
Мне бы такой хватило.
like 14
anonim_31
автор Вредняжка • 28 ноября 2024
2
Ответ дляДобра всем!
Мне бы такой хватило.
Нас 4
anonim_190
Ванна Тазиковна• 28 ноября 2024
3
Кто в теме.. что у Автора стряслось?
like 2 face_with_tears_of_joy 19
anonim_139
Добра всем!• 28 ноября 2024
4
Ответ дляВредняжка
Нас 4
Нас 3. Чтобы было 4, надо хотя бы такую же.
face_with_tears_of_joy 10
anonim_87
Прокачую сідниці• 28 ноября 2024
5
Мне нравится планировка. Дети однополые?
like 3
anonim_95
Залізний занавіс• 28 ноября 2024
6
Ответ дляВредняжка
Нас 4
Так если вас 4 , зачем изначально рассматривать 2 комнатную ? Минимум 3 нужна , а лучше 4 .
dislike 1 face_with_tears_of_joy 3 like 10
anonim_190
Ванна Тазиковна• 28 ноября 2024
7
Автор, на кухне можно диван поставить = почти еще одна комната. А в остальном, если есть деньги можно и 3-к всегда купить! Их много сейчас и цены ниже...
face_with_tears_of_joy 7 like 1
anonim_123
Я шалунья• 28 ноября 2024
8
Ответ дляЗалізний занавіс
Так если вас 4 , зачем изначально рассматривать 2 комнатную ? Минимум 3 нужна , а лучше 4 .
+1 если однополые дети то изначально только трешку, если разнополые то четырехкомнатную
like 4 woman_facepalming 3
anonim_123
Я шалунья• 28 ноября 2024
9
Мне нравится планировка.
А в чем проблема?
like 8
anonim_131
Непонятно• 28 ноября 2024
10
Ответ дляВанна Тазиковна
Кто в теме.. что у Автора стряслось?
Собаці як нема що робити то вона яйця лиже
face_with_tears_of_joy 3 like 1 heart 2 woman_facepalming 4
anonim_190
Ванна Тазиковна• 28 ноября 2024
11
Ответ дляЗалізний занавіс
Так если вас 4 , зачем изначально рассматривать 2 комнатную ? Минимум 3 нужна , а лучше 4 .
Открою Вам ОГРОМНУЮ тайну: деньги! Вот причина почему вместо 3-4 к покупают 2-к
woman_facepalming 1 like 14
anonim_95
Залізний занавіс• 28 ноября 2024
12
Ответ дляЯ шалунья
+1 если однополые дети то изначально только трешку, если разнополые то четырехкомнатную
У меня однополые и не хотят в одной комнате у каждого желательно если есть возможность должна быть своя комната .
like 1 face_with_tears_of_joy 1 woman_facepalming 3
anonim_139
Добра всем!• 28 ноября 2024
13
Ответ дляЯ шалунья
+1 если однополые дети то изначально только трешку, если разнополые то четырехкомнатную
Мои родители взяли для разнополых трёшку. Мы там пожили пару лет и разъехались, а им теперь отапливать трёху двоим.
woman_facepalming 1 like 8
anonim_190
Ванна Тазиковна• 28 ноября 2024
14
Ответ дляЗалізний занавіс
У меня однополые и не хотят в одной комнате у каждого желательно если есть возможность должна быть своя комната .
Ага.. лучше свой ДОМ...каждому!
face_with_tears_of_joy 11 woman_facepalming 1
anonim_123
Я шалунья• 28 ноября 2024
15
Ответ дляДобра всем!
Мои родители взяли для разнополых трёшку. Мы там пожили пару лет и разъехались, а им теперь отапливать трёху двоим.
И что? Вы б хотели чтоб они олнушку купили с детьми?
Мои продали свою квартиру и купили дом перед пенсией.
Им ничто не мешало продать свою квартиру когда вы разъехались и купить меньше если б они хотели.

Мы купили 4хкомнатную когда дети подросли, чтоб всем было комфортно.
woman_facepalming 5 like 1
noavatar
Николай-b526• 28 ноября 2024
16
мало места!
like 1 woman_facepalming 5
anonim_123
Я шалунья• 28 ноября 2024
17
Ответ дляЗалізний занавіс
У меня однополые и не хотят в одной комнате у каждого желательно если есть возможность должна быть своя комната .
Ну что хотят/не хотят дети - не важно, если родители не могут это обеспечить.
like 6 woman_facepalming 1
anonim_139
Добра всем!• 28 ноября 2024
18
Ответ дляЯ шалунья
И что? Вы б хотели чтоб они олнушку купили с детьми?
Мои продали свою квартиру и купили дом перед пенсией.
Им ничто не мешало продать свою квартиру когда вы разъехались и купить меньше если б они хотели.

Мы купили 4хкомнатную когда дети подросли, чтоб всем было комфортно.
Мне жаль их труда. Сделали хороший ремонт, продавать невыгодно. Двушки нам бы хватило.
like 1
anonim_176
Ошеламиссимо• 28 ноября 2024
19
Ответ дляДобра всем!
Мои родители взяли для разнополых трёшку. Мы там пожили пару лет и разъехались, а им теперь отапливать трёху двоим.
Я так дом построила и теперь там никто не живёт, ни дети, ни я....
like 1
anonim_4
Однозначная• 28 ноября 2024
20
Ответ дляВанна Тазиковна
Ага.. лучше свой ДОМ...каждому!
само собою, з 15 спальнями, ваннами і басейном. А то якісь ніщеброди, виходить
face_with_tears_of_joy 2 like 3
anonim_112
Кукарикуууууу• 28 ноября 2024
21
Ответ дляВанна Тазиковна
Кто в теме.. что у Автора стряслось?
Места посидеть в корридоре на входе мало
face_with_tears_of_joy 4
anonim_176
Ошеламиссимо• 28 ноября 2024
22
Автор, что не так с квартирой? И с гардеробной?
like 4
anonim_123
Я шалунья• 28 ноября 2024
23
Ответ дляВанна Тазиковна
Открою Вам ОГРОМНУЮ тайну: деньги! Вот причина почему вместо 3-4 к покупают 2-к
Но автор пишет что есть на трешку деньги если эту продаст....

Я всё ещё ждут ответа от автора - в чем тактике проблема
anonim_31
автор Вредняжка • 28 ноября 2024
24
Ответ дляВанна Тазиковна
Открою Вам ОГРОМНУЮ тайну: деньги! Вот причина почему вместо 3-4 к покупают 2-к
Спасибо, что поддержали. Я смотрю, тут многие сразу покупают 4 комнаты😀
woman_facepalming 3 face_with_tears_of_joy 2 like 4
anonim_15
Щепотка_совести• 28 ноября 2024
25
Ответ дляДобра всем!
Мои родители взяли для разнополых трёшку. Мы там пожили пару лет и разъехались, а им теперь отапливать трёху двоим.
Кстати, верное замечание. Время быстро пролетает, на самом деле, и детям-студентам ненормально с родителями жить, хоть в трёшке, хоть в четырешке. У меня сын в 18 упорхнул, теперь у нас с мужем две отдельные спальни и площади более чем достаточно.
like 2
anonim_4
Однозначная• 28 ноября 2024
26
Ответ дляВредняжка
Спасибо, что поддержали. Я смотрю, тут многие сразу покупают 4 комнаты😀
істинні порадниці купляють відразу вілли з обслугою (ви що, недавно на Порадниці?)
woman_facepalming 2 face_with_tears_of_joy 5 like 1
anonim_112
Кукарикуууууу• 28 ноября 2024
27
Ответ дляВредняжка
Спасибо, что поддержали. Я смотрю, тут многие сразу покупают 4 комнаты😀
Так если есть возможность, продавайте и берите 3 отдельные спальни. Дети быстро растут. А еще учтите, что с ремонтом будет намного дороже. Все просчитайте, осилите ли вы, и вперед. Тут лишь финансовый вопрос, не более.
like 2
anonim_123
Я шалунья• 28 ноября 2024
28
Ответ дляДобра всем!
Мне жаль их труда. Сделали хороший ремонт, продавать невыгодно. Двушки нам бы хватило.
Это их решение и их жизнь.
Мы жили с двумя детьми в двушке 6 лет - это был нам кошмар с мужем, а детям - да. Было хорошо и в двушке пока не стали подростками.
woman_facepalming 2
anonim_167
Злива інформації• 28 ноября 2024
29
Ответ дляЯ шалунья
Мне нравится планировка.
А в чем проблема?
Хочет в гольф играть в коридоре .... мешает гардеробная)
face_with_tears_of_joy 5
anonim_190
Ванна Тазиковна• 28 ноября 2024
30
Ответ дляВредняжка
Спасибо, что поддержали. Я смотрю, тут многие сразу покупают 4 комнаты😀
Та что там 4-к, тут сразу дома и про запас каждому ребенку еще по ДОМу и на перспективу.. Тут люди заходят поиграть в игру ’я боХАтая мадам раздаю умные советы как быстро тратить МНОГО денег’ фантазии они такие..
face_with_tears_of_joy 4 woman_facepalming 2
  • 1
  • 2
  • 3
Мнения, изложенные в теме, передают взгляды авторов и не отражают позицию Kidstaff
Тема закрыта

Похожие темы:

Ще з цiкавого


Популярные вопросы!

Сегодня Вчера 7 дней 30 дней

ещё

Сейчас читают!

Назад Комментарии к ответу

О нас | Служба Поддержки | Помощь

Правила | Ограничения | Cookies ©2008—2025 Советчица Kidstaff