sovetchitsa
Советчица
Вход Регистрация
Спросить Советую Промо публикация Поиск товара
Настройки
Язык меню: ru ua Шрифт: a a a
Служба поддержки
Вход Регистрация
Правила | Ограничения | Cookies
©2008—2025 Советчица Kidstaff
Советчица - Семья, Дом, Дети - Другое
anonim_87
Даю справку• 10 марта 2019

Вопросы ремонт

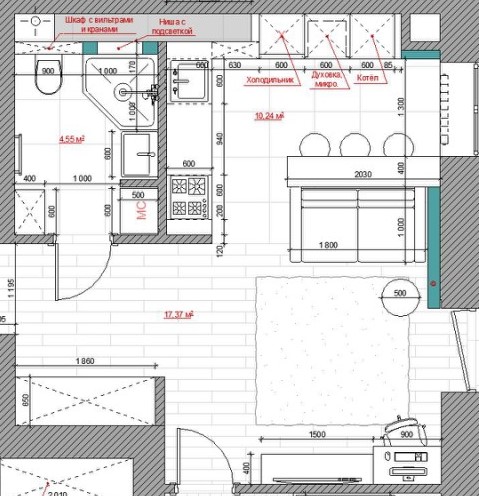
Думаем над оформление и расстановкой мебели в кухне - гостиной. Вариант дизайнера первонач прилагаю, но запрос был : рассм возможность использования и расширения подоконника под стол-рабочую поверхность, плавно переходящий в барную стойку. Плюс возможность выдвижной системы-из барной стойки стол на 4 человека. Понимаю, что заморочено с трансформером, но хочется небольшое пространство кухни использовать по максимуму. Как вам такой вариант (закрасила как могла)?:Какие минусы у обоих вариантов и как бы вы сделали?Диван в моем варианте немного сдвигается вперед
attached-photo
attached-photo
5 0
Все фото темыКомментарии автораМои ответы
anonim_159
Дама_с_караваем• 10 марта 2019
1
Вам уже писали: гоните этого дизайнера в зад.
anonim_87
автор Даю справку • 10 марта 2019
2
Ответ дляДама_с_караваем
Вам уже писали: гоните этого дизайнера в зад.
я вопрос задавала, когда у самой еще не были четко сформированы пожелания, но реальность такова как я нарисовала на картинке. Хотелось бы в идеале так. Интересует мнение с практической т.з. С дизайнером прийдется доработать хотя бы расстановку потому что предоплату уже внесли
anonim_149
Безникая• 10 марта 2019
3
Жаль, не могу сделать фото....
У меня в кухне полстены с окном, буквой г.
Подоконник исполнен в виде столешни на всю длину. Стол опускается вниз.
Интересная дизайнер. Её задача воплотить ваши фантазии. Пусть предлагает ещё варианты.
anonim_87
автор Даю справку • 10 марта 2019
4
Ответ дляБезникая
Жаль, не могу сделать фото....
У меня в кухне полстены с окном, буквой г.
Подоконник исполнен в виде столешни на всю длину. Стол опускается вниз.
Интересная дизайнер. Её задача воплотить ваши фантазии. Пусть предлагает ещё варианты.
спасибо, будем стоять на своем)
anonim_93
Просто Филя• 10 марта 2019
5
А можно холодильник на место плиты?
Мнения, изложенные в теме, передают взгляды авторов и не отражают позицию Kidstaff
Тема закрыта

Похожие темы:

Ще з цiкавого


Популярные вопросы!

Сегодня Вчера 7 дней 30 дней

ещё

Сейчас читают!

Назад Комментарии к ответу

О нас | Служба Поддержки | Помощь

Правила | Ограничения | Cookies ©2008—2025 Советчица Kidstaff