sovetchitsa
Советчица
Вход Регистрация
Спросить Советую Промо публикация Поиск товара
Настройки
Язык меню: ru ua Шрифт: a a a
Служба поддержки
Вход Регистрация
Правила | Ограничения | Cookies
©2008—2025 Советчица Kidstaff
Советчица - Семья, Дом, Дети - Интерьер
anonim_170
Нічого вдягти• 23 января в 13:50

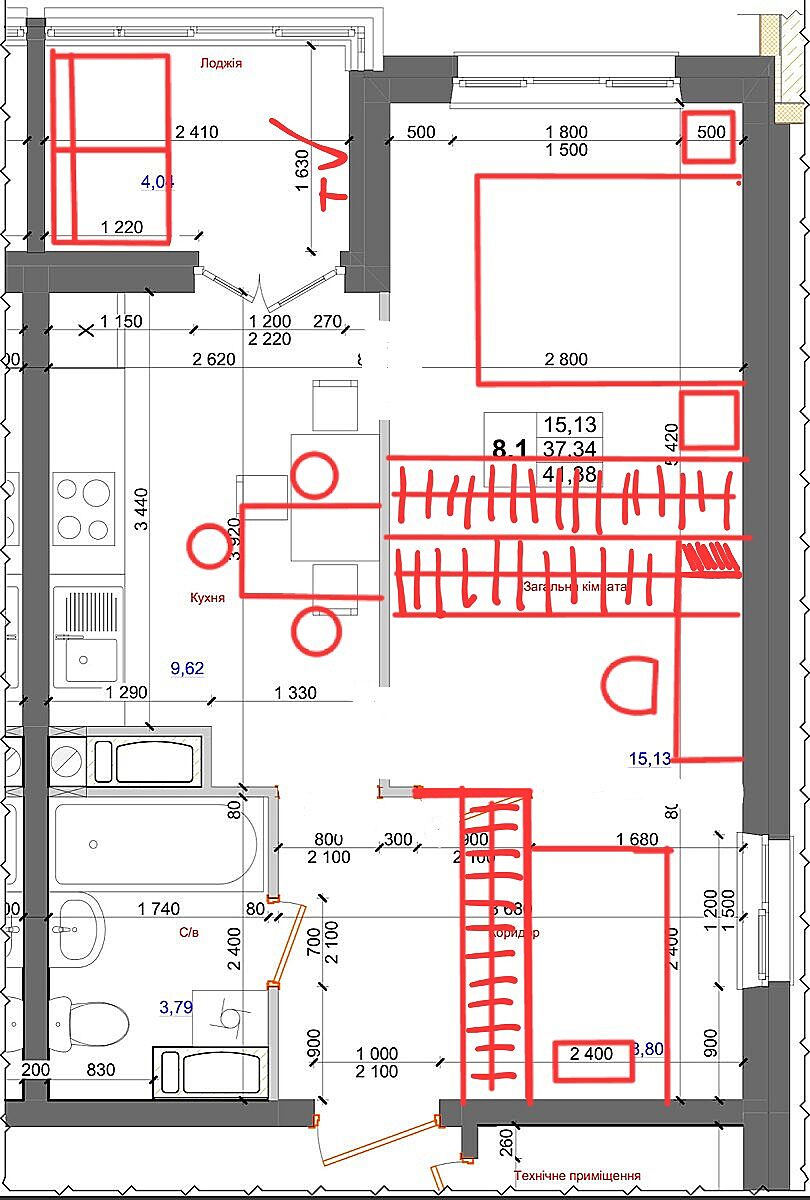
Може хтось підкаже планування для квартири?

Доброго дня. Скоро здається квартира, планування можна поміняти під себе. Евродвушка, 3 вікна. Нас трое.
Один варіант є, може у когось схоже планування, на що звернути увагу, що змінити.

Дякую!
attached-photo
attached-photo
73 0
Все фото темыКомментарии автораМои ответы
  • 1
  • 2
  • 3
anonim_170
автор Нічого вдягти • 23 января в 13:53
1
Що тут не враховано - буде душова кабіна, поруч колонна пралка та сушка.
У кухні зліва диван обовʼязково)
anonim_140
Звоночек• 23 января в 13:57
2
Ви вже створювали тему з цим плануванням? Там наче були ще варіанти
anonim_116
Играю у края• 23 января в 14:03
3
Я бы сделала вход в комнату верхнюю, в низу, что бы не бегать так далеко из комнаты в комнату. Что бы входы в комнату были рядом.
anonim_170
автор Нічого вдягти • 23 января в 14:08
4
Ответ дляЗвоночек
Ви вже створювали тему з цим плануванням? Там наче були ще варіанти
Ні, вперше.
anonim_170
автор Нічого вдягти • 23 января в 14:09
5
Ответ дляИграю у края
Я бы сделала вход в комнату верхнюю, в низу, что бы не бегать так далеко из комнаты в комнату. Что бы входы в комнату были рядом.
Треба подумати. Тоді шафу треба перенесити
anonim_34
Хочу в БАНю• 23 января в 14:11
6
Какой диван на 9 м. кухне? Зачем?
3 - это 2 взрослых и ребенок? Тогда делайте 2 спальни. В детской шкаф и стол поменять местами, посмотреть чтобы кровать 2,1-2,15 влезла
anonim_170
автор Нічого вдягти • 23 января в 14:12
7
Ответ дляХочу в БАНю
Какой диван на 9 м. кухне? Зачем?
3 - это 2 взрослых и ребенок? Тогда делайте 2 спальни. В детской шкаф и стол поменять местами, посмотреть чтобы кровать 2,1-2,15 влезла
Мені треба тада диванчик)
woman_facepalming 1
anonim_116
Играю у края• 23 января в 14:14
8
Ответ дляНічого вдягти
Мені треба тада диванчик)
А где там будет диван? В осной стороны кухня с другой стол и двери.
anonim_34
Хочу в БАНю• 23 января в 14:15
9
Ответ дляНічого вдягти
Мені треба тада диванчик)
Вам треба спуститься на землю. В реальных габаритных размерах все рисовать. Где холодильник?
like 2
anonim_34
Хочу в БАНю• 23 января в 14:16
10
И я бы делала душ вместо ванной. Кто в наших условиях реально набирает ванну?
like 1 dislike 1
anonim_170
автор Нічого вдягти • 23 января в 14:17
11
Ответ дляХочу в БАНю
И я бы делала душ вместо ванной. Кто в наших условиях реально набирает ванну?
Так, буде душова кабіна) бо дуже хочу колонну пралку-сушку
anonim_140
Звоночек• 23 января в 14:17
12
Ответ дляНічого вдягти
Ні, вперше.
Вже точно було таке планування. Може пошукайте по ключовому слову перепланування.
Я б зробила більше місць для зберігання.
Балкон би утеплила, зробила теплу підлогу.
attached-photo
like 2
anonim_170
автор Нічого вдягти • 23 января в 14:18
13
Ответ дляХочу в БАНю
Вам треба спуститься на землю. В реальных габаритных размерах все рисовать. Где холодильник?
З кухнею треба на місці вже рішати. Там багато чого треба, це вже малювати треба з кухонщиком.
anonim_170
автор Нічого вдягти • 23 января в 14:19
14
Ответ дляХочу в БАНю
Вам треба спуститься на землю. В реальных габаритных размерах все рисовать. Где холодильник?
А нік то який у вас… нашо хамити🤦‍♀️
woman_facepalming 1
anonim_23
Бабуся Бетман• 23 января в 14:21
15
Это новострой? без ремонта от застройщика?
anonim_34
Хочу в БАНю• 23 января в 14:22
16
Ответ дляНічого вдягти
А нік то який у вас… нашо хамити🤦‍♀️
В чем хамство? Вы рисуете кровать 1,8. У вас там ребенок до 10 лет будет спать?
like 2
anonim_34
Хочу в БАНю• 23 января в 14:23
17
Это однушка. Зачем вы называете ее евродвушкой?
woman_facepalming 1 like 3
anonim_170
автор Нічого вдягти • 23 января в 14:24
18
Ответ дляЗвоночек
Вже точно було таке планування. Може пошукайте по ключовому слову перепланування.
Я б зробила більше місць для зберігання.
Балкон би утеплила, зробила теплу підлогу.
То лоджія, вона вже утеплена і засклена. А ось дитяча виходить більша, мені дуже подобається. Дякую.
anonim_170
автор Нічого вдягти • 23 января в 14:25
19
Ответ дляБабуся Бетман
Это новострой? без ремонта от застройщика?
Новобудова, чистове є, розводка світла, стяжка, більше нічого.
anonim_170
автор Нічого вдягти • 23 января в 14:25
20
Ответ дляХочу в БАНю
Это однушка. Зачем вы называете ее евродвушкой?
Бо так називає забудовник.
anonim_23
Бабуся Бетман• 23 января в 14:27
21
Ответ дляНічого вдягти
Новобудова, чистове є, розводка світла, стяжка, більше нічого.
А все переделки, мебель, будет делать хозяин квартиры или вы?
anonim_170
автор Нічого вдягти • 23 января в 14:27
22
Ответ дляХочу в БАНю
В чем хамство? Вы рисуете кровать 1,8. У вас там ребенок до 10 лет будет спать?
Ну буде довша трохи. 1.90.
anonim_170
автор Нічого вдягти • 23 января в 14:28
23
Ответ дляБабуся Бетман
А все переделки, мебель, будет делать хозяин квартиры или вы?
Я власниця, я буду)
like 1
anonim_23
Бабуся Бетман• 23 января в 14:29
24
Ответ дляНічого вдягти
Я власниця, я буду)
Ааааа) я не так поняла, думала сдается квартира))) А то сдача застройщиком вам. Поняла.
anonim_156
Сільський ансамбль• 23 января в 14:30
25
Я би ліжко дитяче поперек ставила, а стіл обличчям до вікна. Так можна ліжко більшого розміру поставити. Ну і щоб в ноги не дуло взимку
anonim_170
автор Нічого вдягти • 23 января в 14:31
26
Ответ дляБабуся Бетман
Ааааа) я не так поняла, думала сдается квартира))) А то сдача застройщиком вам. Поняла.
Так) Тому вже продумаю варіанти)
like 1
anonim_170
автор Нічого вдягти • 23 января в 14:32
27
Ответ дляСільський ансамбль
Я би ліжко дитяче поперек ставила, а стіл обличчям до вікна. Так можна ліжко більшого розміру поставити. Ну і щоб в ноги не дуло взимку
Дякую, треба цє переробити.
heart 1
anonim_23
Бабуся Бетман• 23 января в 14:33
28
Ответ дляНічого вдягти
Так) Тому вже продумаю варіанти)
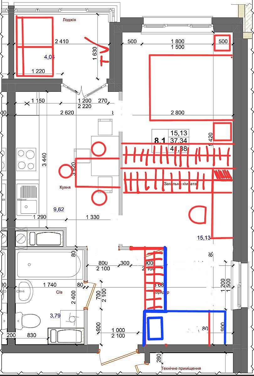
Вариант что скинули, с пометками красным, интереснее чем ваш.
anonim_140
Звоночек• 23 января в 14:33
29
Ответ дляНічого вдягти
То лоджія, вона вже утеплена і засклена. А ось дитяча виходить більша, мені дуже подобається. Дякую.
Можна ліжко інакше трохи поставити, зробивши нішу
attached-photo
anonim_170
автор Нічого вдягти • 23 января в 14:34
30
Ответ дляБабуся Бетман
Вариант что скинули, с пометками красным, интереснее чем ваш.
Так, я зберігла. Мені теж більше сподобався! Більша дитяча, мені кухня більше треба)
like 2
  • 1
  • 2
  • 3
Мнения, изложенные в теме, передают взгляды авторов и не отражают позицию Kidstaff
Тема закрыта

Похожие темы:

Ще з цiкавого


Популярные вопросы!

Сегодня Вчера 7 дней 30 дней

ещё

Сейчас читают!

Назад Комментарии к ответу

О нас | Служба Поддержки | Помощь

Правила | Ограничения | Cookies ©2008—2025 Советчица Kidstaff