Телочка• 19 ноября 2016
Эта кухня сведет меня с ума((( как изменить проект? дубль 2
вчера уже создавала вопрос с кухней.
фото 1 - это голая стена,
фото 2 - проект от мебельной компании с учетом моих пожеланий, но который мне не нравится
фото 3 - последняя версия полета моей фантазии на основе выводов из вчерашней темы
подняла ящики почти до потолка, и добавила над холодильником ящик, внизу сделала скошенный угол, но с узкой дверцей (короб 80*80). но все равно что-то смущает, а голова уже не варит после всего этого "тетриса".
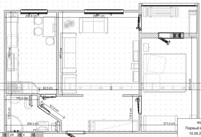
фото 4-5 почти пустая кухня 3,9м на 1,6м (полный размер 3,9*2,45м) с учетом основных выступов, не нарисованы только трубы отопления.
пы.сы. духовку все таки не хочу опускать, из-за розеток особо не поможет, ничего сместить на ее место не смогу, а больше рабочих поверхностей мне и не надо.
фото 1 - это голая стена,
фото 2 - проект от мебельной компании с учетом моих пожеланий, но который мне не нравится
фото 3 - последняя версия полета моей фантазии на основе выводов из вчерашней темы
подняла ящики почти до потолка, и добавила над холодильником ящик, внизу сделала скошенный угол, но с узкой дверцей (короб 80*80). но все равно что-то смущает, а голова уже не варит после всего этого "тетриса".
фото 4-5 почти пустая кухня 3,9м на 1,6м (полный размер 3,9*2,45м) с учетом основных выступов, не нарисованы только трубы отопления.
пы.сы. духовку все таки не хочу опускать, из-за розеток особо не поможет, ничего сместить на ее место не смогу, а больше рабочих поверхностей мне и не надо.
показать весь текст
автор
Телочка
• 19 ноября 2016
Ответ дляАпочемучка
Как многие женщины думаю одно - пишу/говорю другое)))) именно про лево я и говорила (хотя лично мне удобнее почему-то справа....)
мне удобнее слева, не знаю нюансов родители поставили справа, возле мойки, мне немного не удобно, а вот слева было бы самое оно
. надеюсь в следующей квартире будет не такая проблемная кухня и смогу разместить все именно так, как хочу.
хотя мы и так кухню расширили как смогли, пожертвовали ради этого ванной, вот план до и после. из-за этого и короб нарисовался, это канализация, труба уже ну никак не влазила в нашу микро ванну
в коротую я умудрилась поместить все (правда в итоге не так как на плане, умывальник и стиралка поменялись местами.
. надеюсь в следующей квартире будет не такая проблемная кухня и смогу разместить все именно так, как хочу. хотя мы и так кухню расширили как смогли, пожертвовали ради этого ванной, вот план до и после. из-за этого и короб нарисовался, это канализация, труба уже ну никак не влазила в нашу микро ванну
в коротую я умудрилась поместить все (правда в итоге не так как на плане, умывальник и стиралка поменялись местами.
автор
Телочка
• 19 ноября 2016
Ответ дляАпочемучка
Первый вариант вижу. Карго убирайте, делайте угловую не 100,а 120 (тут уже разницы нет, но карго там просто не пляшет), тогда дверца внизу и вверху будут смотреться лучше, чем 40 и 20) Срезанный угол какой ширины? Может быть увеличить полезную площадь, а уголок сделать чисто декоративным и открытым?
срезанный угол там будет той ширины, которая влезет после установки ящиков, в этом варианте около 30 см.
открытым точно нет, более тупым да, так и будет, просто не стала заморачиваться с перерисовкой фасада в про 100, просто убрала полукруг от базоного, от этого и такой острый вышел.мне сейчас главное визуализация, нюансы уже будут мастера дорабатывать.
а куда тогда карго? оно мне просто надо, не важно широкое или узкое, но досточки и масло не представляю где еще можно хранить, ненавижу круги от масла на полках и вечно падающие досточки
открытым точно нет, более тупым да, так и будет, просто не стала заморачиваться с перерисовкой фасада в про 100, просто убрала полукруг от базоного, от этого и такой острый вышел.мне сейчас главное визуализация, нюансы уже будут мастера дорабатывать.
а куда тогда карго? оно мне просто надо, не важно широкое или узкое, но досточки и масло не представляю где еще можно хранить, ненавижу круги от масла на полках и вечно падающие досточки
Апочемучка• 19 ноября 2016
Ответ дляРо30BbIu_CJIoHuK
срезанный угол там будет той ширины, которая влезет после установки ящиков, в этом варианте около 30 см.
открытым точно нет, более тупым да, так и будет, просто не стала заморачиваться с перерисовкой фасада в про 100, просто убрала полукруг от базоного, от этого и такой острый вышел.мне сейчас главное визуализация, нюансы уже будут мастера дорабатывать.
а куда тогда карго? оно мне просто надо, не важно широкое или узкое, но досточки и масло не представляю где еще можно хранить, ненавижу круги от масла на полках и вечно падающие досточки
открытым точно нет, более тупым да, так и будет, просто не стала заморачиваться с перерисовкой фасада в про 100, просто убрала полукруг от базоного, от этого и такой острый вышел.мне сейчас главное визуализация, нюансы уже будут мастера дорабатывать.
а куда тогда карго? оно мне просто надо, не важно широкое или узкое, но досточки и масло не представляю где еще можно хранить, ненавижу круги от масла на полках и вечно падающие досточки
Если надо - тогда ставьте) Не будет мешать короб, вроде бы он именно там?
Апочемучка• 19 ноября 2016
Ответ дляРо30BbIu_CJIoHuK
срезанный угол там будет той ширины, которая влезет после установки ящиков, в этом варианте около 30 см.
открытым точно нет, более тупым да, так и будет, просто не стала заморачиваться с перерисовкой фасада в про 100, просто убрала полукруг от базоного, от этого и такой острый вышел.мне сейчас главное визуализация, нюансы уже будут мастера дорабатывать.
а куда тогда карго? оно мне просто надо, не важно широкое или узкое, но досточки и масло не представляю где еще можно хранить, ненавижу круги от масла на полках и вечно падающие досточки
открытым точно нет, более тупым да, так и будет, просто не стала заморачиваться с перерисовкой фасада в про 100, просто убрала полукруг от базоного, от этого и такой острый вышел.мне сейчас главное визуализация, нюансы уже будут мастера дорабатывать.
а куда тогда карго? оно мне просто надо, не важно широкое или узкое, но досточки и масло не представляю где еще можно хранить, ненавижу круги от масла на полках и вечно падающие досточки
По поводу ящиков на углу - там надо ставить доп. планку, чтобы ящики немного отодвинуть, иначе не будут открываться из-за ручки углового корпуса. Ну и на углу возле мойки они неудобны всегда...
автор
Телочка
• 19 ноября 2016
Ответ дляАпочемучка
Если надо - тогда ставьте) Не будет мешать короб, вроде бы он именно там?
блин, точно.
автор
Телочка
• 19 ноября 2016
Ответ дляАпочемучка
По поводу ящиков на углу - там надо ставить доп. планку, чтобы ящики немного отодвинуть, иначе не будут открываться из-за ручки углового корпуса. Ну и на углу возле мойки они неудобны всегда...
да, я знаю, ручки будут маленький квадратные 50*50 см.
Апочемучка• 19 ноября 2016
Ответ дляРо30BbIu_CJIoHuK
да, я знаю, ручки будут маленький квадратные 50*50 см.
Какие бы не поставили - они выступают! Соответственно ящик будет открываться только до места, где расположена ручка на соседнем (100см), либо ставить расширение 3-5см
автор
Телочка
• 19 ноября 2016
Ответ дляАпочемучка
Какие бы не поставили - они выступают! Соответственно ящик будет открываться только до места, где расположена ручка на соседнем (100см), либо ставить расширение 3-5см
вставку именно со стороны яшиков на глубину ручки +1 см примерно.
автор
Телочка
• 19 ноября 2016
Ответ дляАпочемучка
Какие бы не поставили - они выступают! Соответственно ящик будет открываться только до места, где расположена ручка на соседнем (100см), либо ставить расширение 3-5см
плюс как вариант рассматриваю ручку в другую сторону ставить, мне удобнее все открывать правой рукой
автор
Телочка
• 19 ноября 2016
Ответ дляАпочемучка
Какие бы не поставили - они выступают! Соответственно ящик будет открываться только до места, где расположена ручка на соседнем (100см), либо ставить расширение 3-5см
добавила новый вариант, но вопрос с микроволновкой остался открытым((((
Апочемучка• 19 ноября 2016
Ответ дляРо30BbIu_CJIoHuK
вставку именно со стороны яшиков на глубину ручки +1 см примерно.
Одного см маловастенько будет. Еще от этого доп. проблемы, чтобы выровнять верх, либо вверху тоже доп. планку вставить, либо ящики подрезать (что значительно дороже). Какие механизмы планируете на ящики (большие?)
автор
Телочка
• 19 ноября 2016
Ответ дляАпочемучка
Одного см маловастенько будет. Еще от этого доп. проблемы, чтобы выровнять верх, либо вверху тоже доп. планку вставить, либо ящики подрезать (что значительно дороже). Какие механизмы планируете на ящики (большие?)
понятия не имею, механизмы обычные, полного выдвижения, без доводчиков, и дорого и они меня раздражают немного, постоянно хочется придавить, доводчик нравится только на крышке для унитаза
Апочемучка• 19 ноября 2016
Ответ дляРо30BbIu_CJIoHuK
добавила новый вариант, но вопрос с микроволновкой остался открытым((((
Выглядит значительно логичнее) На угловой тумбе ручка и должна быть с другой стороны, так как дверка, как правило, крепится к соединительной планке, а не к левой стенке корпуса, так что в этом варианте может сложиться)
Апочемучка• 19 ноября 2016
Ответ дляРо30BbIu_CJIoHuK
понятия не имею, механизмы обычные, полного выдвижения, без доводчиков, и дорого и они меня раздражают немного, постоянно хочется придавить, доводчик нравится только на крышке для унитаза
Самые простые будут громыхать при загрузке ящика, телескопические надо уточнять, чтобы выдерживали нагрузку. Доводчик бережет мебель), но действительно, толковые стоят дороже самой мебели)))
автор
Телочка
• 19 ноября 2016
Ответ дляАпочемучка
Самые простые будут громыхать при загрузке ящика, телескопические надо уточнять, чтобы выдерживали нагрузку. Доводчик бережет мебель), но действительно, толковые стоят дороже самой мебели)))
телескопические это и есть полного выдвижения, если не ошибаюсь, под самыми простыми имелось в виду без доп. опций, но качественные, не китай однозначно.
блюмовские доводчики около 600 гнрн стоят, а дешевые лотерея, у кого-то служат 5 лет, а у кого-то 5 дней. уже изучала этот вопрос.
блюмовские доводчики около 600 гнрн стоят, а дешевые лотерея, у кого-то служат 5 лет, а у кого-то 5 дней. уже изучала этот вопрос.
автор
Телочка
• 19 ноября 2016
Ответ дляБритоножка
Як на мене, то холодильник не варто ставити біля духовки.
у меня у родителей 10 лет так стоит, у подружки 7 лет и все нормально. современные духовки уже не вредят холодильникам, да и холодильники уже меньше подвержены влиянию тепла, а ноуфрост вобще через боковые стенки часть тепла отдают, быстрее сама мебель поплавится
или кромки поотпадают (кстати поэтому и пленочный МДФ чтоб не было кромок на фасаде)
или кромки поотпадают (кстати поэтому и пленочный МДФ чтоб не было кромок на фасаде)
Апочемучка• 19 ноября 2016
Ответ дляРо30BbIu_CJIoHuK
у меня у родителей 10 лет так стоит, у подружки 7 лет и все нормально. современные духовки уже не вредят холодильникам, да и холодильники уже меньше подвержены влиянию тепла, а ноуфрост вобще через боковые стенки часть тепла отдают, быстрее сама мебель поплавится
или кромки поотпадают (кстати поэтому и пленочный МДФ чтоб не было кромок на фасаде)
или кромки поотпадают (кстати поэтому и пленочный МДФ чтоб не было кромок на фасаде)
40см от духовки и варочной до холодильника более, чем достаточно по всем меркам. Проследите, чтобы духовку установили качественно, потому как пленка оооочень подвержена влиянию температур (была ситуация, когда духовку неправильно установили или дверца там была не откалибрована и фасады пришлось выбрасывать за несколько месяцев, а новые не всегда будут иметь тот же оттенок)
автор
Телочка
• 19 ноября 2016
Ответ дляАпочемучка
40см от духовки и варочной до холодильника более, чем достаточно по всем меркам. Проследите, чтобы духовку установили качественно, потому как пленка оооочень подвержена влиянию температур (была ситуация, когда духовку неправильно установили или дверца там была не откалибрована и фасады пришлось выбрасывать за несколько месяцев, а новые не всегда будут иметь тот же оттенок)
спасибо, учту этот момент
Апочемучка• 19 ноября 2016
Ответ дляРо30BbIu_CJIoHuK
спасибо, учту этот момент
Поэтому рекомендовала побеседовать с людьми, которые уже пользуются кухней с такими фасадами именно заказанными у той компании, которую Вы выбрали.
Пьера Безухова• 19 ноября 2016
автор а может, на фото 2 в низу микроволновку, продлить столешницу и на неё духовку
автор
Телочка
• 19 ноября 2016
Ответ дляАпочемучка
Поэтому рекомендовала побеседовать с людьми, которые уже пользуются кухней с такими фасадами именно заказанными у той компании, которую Вы выбрали.
компанию еще не выбрала, буду ориентироваться по цене и наличию нужного цвета, если честно мне важнее именно картинка чем функционал, очень хочу определенного цвета, думаю не секрет какого, судя по проекту
плюс, как я уже писала, не часто готовлю. последние 1,5 года у меня даже плиты нет, только мультиварка и микроволновка. а из кухонной мебели у меня только мойка на самодельной стойке из обломков от старых дверных проемов, сбитая гвоздями доставшимися из них же
и 2 поруразвалившиеся совковые тумбочки 60*60 см из ДСП, одна с дверками и одна с 3мя выдвижными ящиками, на них и чайник и мультиварка и микруха и посуда.
плюс, как я уже писала, не часто готовлю. последние 1,5 года у меня даже плиты нет, только мультиварка и микроволновка. а из кухонной мебели у меня только мойка на самодельной стойке из обломков от старых дверных проемов, сбитая гвоздями доставшимися из них же
и 2 поруразвалившиеся совковые тумбочки 60*60 см из ДСП, одна с дверками и одна с 3мя выдвижными ящиками, на них и чайник и мультиварка и микруха и посуда.
автор
Телочка
• 19 ноября 2016
Ответ дляПьера Безухова
автор а может, на фото 2 в низу микроволновку, продлить столешницу и на неё духовку
поменять микроволновку с духовкой местами?
в фото 2 мне больше всего не нравится соседство мойки и варочной. поэтому и начала мудрить
в фото 2 мне больше всего не нравится соседство мойки и варочной. поэтому и начала мудрить
автор
Телочка
• 19 ноября 2016
а вобще это вы еще не видели проект умывальника в ванну
, хотите добью?
но это уже полет чисто моей фантазии, умывальник будет как на фото 3 (больше никакой не влазит
)
, хотите добью? но это уже полет чисто моей фантазии, умывальник будет как на фото 3 (больше никакой не влазит
)
ХдеЯсь?• 19 ноября 2016
Мне вот этот вариант больше всего нравится, исходя из возможностей и желаний. Только верхние ящики по размерам подстроить под нижние, а то ассиметрия.
автор
Телочка
• 19 ноября 2016
Ответ дляХдеЯсь?
Мне вот этот вариант больше всего нравится, исходя из возможностей и желаний. Только верхние ящики по размерам подстроить под нижние, а то ассиметрия.
верхние и так под нижние подстроены, с учетом того что верхний угловой ящик 60 см, а нижний 80, но тут уже из-за глубины такая разница.
верх угол 60 см, ящики 70 см, низ 80 см тумба, ящики 50 см,
жаль сверху не бывает типа карго на 20 см, может подскажите чем можно заполнить, чтоб ящики совпадали. а то мне не нравится что сверху сильно широкие вышли
верх угол 60 см, ящики 70 см, низ 80 см тумба, ящики 50 см,
жаль сверху не бывает типа карго на 20 см, может подскажите чем можно заполнить, чтоб ящики совпадали. а то мне не нравится что сверху сильно широкие вышли
автор
Телочка
• 19 ноября 2016
я кстати думала вывести мойку на левую столешницу полностью и сделать типа таких ящиков в углу, но у меня в углу по правой стенке ревизионное окно и стояк, его нельзя блокировать. эх, а такая хорошая идея
и выглядит красиво и все место в углу задействовано и не мойка. но увы и ах, не мой вариант.
в принципе, я определилась с проектом, надо отправить чтоб пересчитали по новой стоимость, надеюсь не сильно удорожит.
и выглядит красиво и все место в углу задействовано и не мойка. но увы и ах, не мой вариант. в принципе, я определилась с проектом, надо отправить чтоб пересчитали по новой стоимость, надеюсь не сильно удорожит.
Чупа-чупс• 19 ноября 2016
Ответ дляРо30BbIu_CJIoHuK
кстати, вот фото с такой дыркой как у меня
Ну неужели вы не видите насколько халтурно все выглядит на фото
ХдеЯсь?• 19 ноября 2016
Ответ дляРо30BbIu_CJIoHuK
я кстати думала вывести мойку на левую столешницу полностью и сделать типа таких ящиков в углу, но у меня в углу по правой стенке ревизионное окно и стояк, его нельзя блокировать. эх, а такая хорошая идея
и выглядит красиво и все место в углу задействовано и не мойка. но увы и ах, не мой вариант.
в принципе, я определилась с проектом, надо отправить чтоб пересчитали по новой стоимость, надеюсь не сильно удорожит.
и выглядит красиво и все место в углу задействовано и не мойка. но увы и ах, не мой вариант. в принципе, я определилась с проектом, надо отправить чтоб пересчитали по новой стоимость, надеюсь не сильно удорожит.
Да Вам за эти ящики столько загнут
так что и не расстраивайтесь.
Нормальная у Вас дырка. Если Вам она нужна, то делайте и все.
так что и не расстраивайтесь. Нормальная у Вас дырка. Если Вам она нужна, то делайте и все.
Мнения, изложенные в теме, передают взгляды авторов и не отражают позицию Kidstaff
Тема закрыта
Похожие темы:
Назад Комментарии к ответу